Springe zum Inhalt

Architekturbüro Buhrdorf

  • Start
  • Projekte
  • Leistungen
  • Impressum
ProjekteWohnen

Mittelpilghausen_2

Veröffentlicht 19. Oktober 201921. Dezember 2019 Mark Buhrdorf

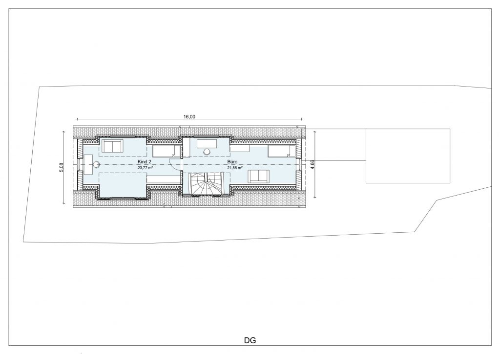
Planung eines Einfamilienhauses auf einem superschmalen Grundstück in einer Hofschaft in Solingen.

LP 1-4

Beitrags-Navigation

⟵Ackerstraße
Fotografie⟶

Dipl. Ing. Arch. Mark Buhrdorf

Herderstraße 80

40237 Düsseldorf

0211-22970951

info@buhrdorf-architekten.de

Kategorien

  • Datenschutz
Stolz präsentiert von WordPress | Theme: Sydney by aThemes.